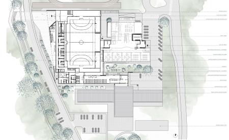
Občina Preddvor je septembra lani podpisala pogodbo za projektno dokumentacijo (IZP in DGD) za graditev športne dvorane s širitvijo šole, s projektantom TRIA STUDIO d.o.o. iz Mengša. Na mestu sedanje telovadnice bo zgrajena nova dvorana v kateri bodo tudi prostori za šolo: nujno potrebna razdelilnica oz jedilnica, tri učilnice, garderobe. Za nadzor nad projektom oz vodenje inženiringa za investicijo in sicer predinvesticijsko fazo do pridobitve gradbenega dovoljenja ter za postopek javnega naročila za izbiro izvajalca za gradnjo je podpisana pogodba z ING ARH Polona Čeh s.p. iz Radovljice. V petek, 26.2.2021 je bila oddana vloga za sofinanciranje nepovratnih sredstev na Ministrstvo za izobraževanje, znanost in šport. V prvem tednu meseca marca pa je bil oddan projekt DGD na Upravno enoto Kranj za pridobitev gradbenega dovoljenja. Župan Rok Roblek je za spremljanje aktivnosti v zvezi s pripravo projektne dokumentacije in izgradnjo dvorane s širitvijo šole izdal sklep o imenovanju gradbenega odbora. preddvor.si/objava/383941
Vodja projekta, Klavdija Zima Slike: Vir: TRIA STUDIO
Zakon o dostopnosti spletišč in mobilnih aplikacij (ZDSMA), ureja ukrepe za zagotovitev dostopnosti spletišč in mobilnih aplikacij zavezancev po tem zakonu za vse uporabnike, zlasti za uporabnike z različnimi oblikami oviranosti. Ta zakon se uporablja za državne organe, organe samoupravnih lokalnih skupnosti in osebe javnega prava
Spletna stran za nemoteno delovanje uporablja piškotke
Spletna stran za delovanje uporablja samo nujno potrebne piškotke, za katere ne potrebujemo vaše privolitve. Brez namestitve teh piškotkov, vam nemotenega dostopa do spletne strani ne moremo omogočiti.
Za več informacij si preberite Politika piškotkov.